Prodaja stanova Novi Sad Šafarikova 25 ulaz A stan 10
PRODAT
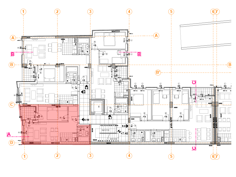
Na drugom spratu naše zgrade u Šafarikovoj 25, u samom centru Novog Sada, nudimo vam ovaj dvosoban stan u izgradnji, površine 40,50 m2. Ovo je stan orijentisan ulično, sa ugrađenim sigurnosnim ulaznim vratima. Ovo nije stan sa odvojenom kuhinjom od dnevne sobe, ali i kuhinja i kupatilo imaju ventilaciju. Ovo je stan sa terasom. Sobna vrata su uvozna, italijanska, a i pločice i kada su takođe italijanski, dok je bojler u kupatilu Ariston, a u svi prekidači i utičnice su iz serije Xperience. Zgrada se greje preko sistema daljinskog grejanja gradske toplane, ali ima sistem merenja za grejanje po utrošku. Što se tiče klimatizacije, mi ugrađujemo Samsung klime prilikom izgradnje. Za sve informacije u vezi sa kupovinom ovog stana, kontaktirajte nas.
DETALJI O STANU
Uknjižen: u izgradnji
Površina: 40,50 m2
Broj soba: 2
Na spratu: drugi
Orijentacija: ulično
Grejanje po utrošku: da
Ulazna vrata: sigurnosna
Odvojena kuhinja: ne
Ventilacije kuhinje: da
Broj kupatila: 1
Ventilacija kupatila: da
Broj toaleta: 0
Broj terasa: 1
Ostava: nema
Sobna vrata: uvozna italijanska
Broj etaža: 1
Kosine: nema
Krovni prozori: nema
PRIBLIŽNA LOKACIJA I DEO GRADA
DETALJI O ZGRADI
Gde se zgrada nalazi:
Novi Sad
Novi Sad
Naselje ili deo grada:
centar
centar
Adresa:
Šafarikova 25
Šafarikova 25
Broj parcele:
9967
9967
Prijava radova:
-
-
Građ. dozvola:
ROP-NSD-22515-CPIH-5/2020
ROP-NSD-22515-CPIH-5/2020
Upotrebna dozvola:
objekat u izgradnji
objekat u izgradnji
Broj spratova:
Po+P+3+Pk
Po+P+3+Pk
Zgrada sa liftom:
da
da
Dostupan parking:
da
da
Vrsta grejanja:
gradska toplana
gradska toplana
Klimatizacija zgrade:
da - Samsung klime
da - Samsung klime
Keramika u zgradi:
italijanska keramika
italijanska keramika
Podovi u sobama:
parket
parket
Udaljenost od vrtića:
500 m
500 m
Udaljenost od osnovne škole:
500 m
500 m
Udaljenost od univerziteta:
1200 m
1200 m
Udaljenost od gradskog prevoza:
5 m
5 m
Udaljenost od centra:
0 m
0 m
Udaljenost od parka:
450 m
450 m
Tržni centar/veća trgovina:
200 m
200 m
Udaljen od SNP:
100 m
100 m
Udaljen od katedrale:
200 m
200 m
Udaljen od Uspenske crkve:
30 m
30 m
Visina plafona:
2,90 m
2,90 m
Spoljnja stolarija:
aluminijumska
aluminijumska