Prodaja stanova Šafarikova 27 ulaz B - prvi sprat

Pregledaj još na ovoj lokaciji:
prizemlje potkrovlje NAZAD
PRODAT
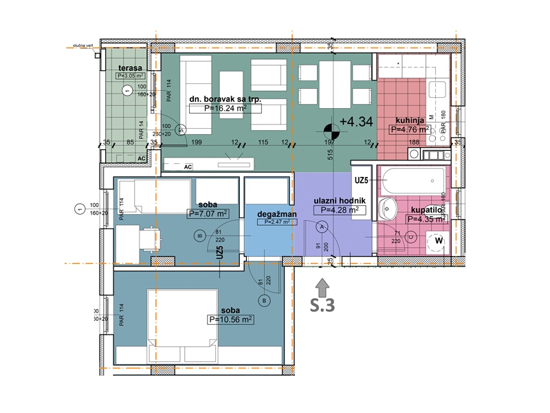
Komercijalna skica stan 3

Mala kvadratura, odličan raspored, dvorišna orijentacija...

vidi sve detalje
PRODAT
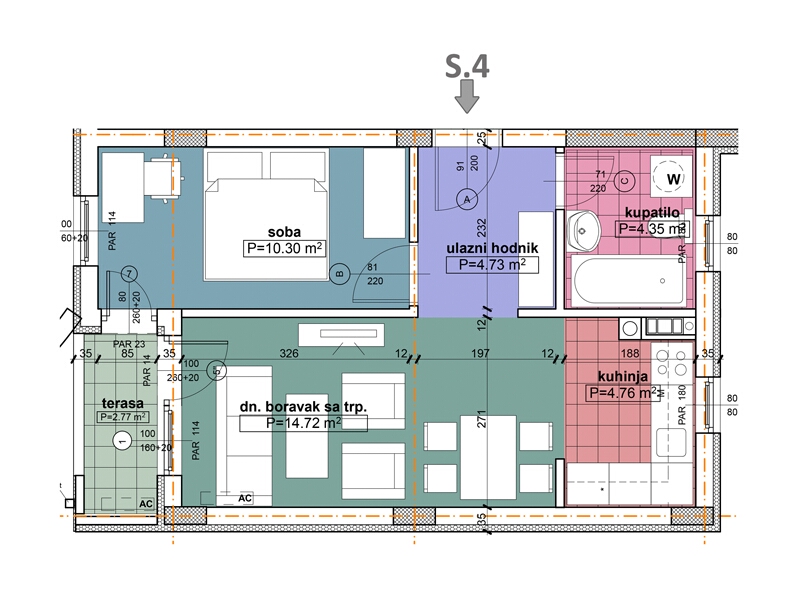
Komercijalna skica stan 4

Mala kvadratura, funkcionalno isprojektovan, za izdavanje savršen...

vidi sve detalje

© LineaInvest.Rs - proizvodnja 2019. - BusinessClub.Rs