PRODAT - stan 5 Šafarikova 27 ulaz B - potkrovlje

PRODAT

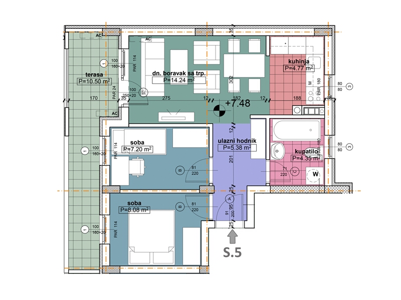
Na lokaciji Šafarikova 27, u ulazu B, nudimo vam ovaj odlično isprojektovan stan od 54,54 m2, orijentisan dvorišno, u potkrovlju. Ovo je stan sa dve spavaće sobe i dnevnim boravkom koji je spojen sa kuhinjom i trpezarijskim delom. Ovo je stan sa velikom terasom koja se proteže celom jednom stranom stana. Opremljen je aluminijumskim ulaznim vratima i kvalitetnom uvoznom unutrašnjom stolarijom. Stan ima velike prozore, pa iako je dvorišno orijentisan, pretpostavka je da će biti dobro osvetljen. Lokacija je svakako jedinstvena i ovo se, za pojmove Novog Sada može smatrati stanom u centru po svim kriterijumima. Na svega nekoliko stotina metara se nalazi apsolutno sve što vam je potrebno od životnih sadržaja, tako da je ovo savršen stan za izdavanje ili život studenta ili mladog para. Poseban kuriozitet u vezi sa ovim projektom novogradnje u Novom Sadu je taj da uz svaki stan kupcu sledi podrumska prostorija, tako da je ovo praktično i stan sa ostavom i dodatnim prostorom. Ovaj stan, sa visokim plafonima, postavljenim na čak 2,90 m, može da bude kupljen i kao stan na kredit, ali o tome se više informišite direktnim kontaktom.


GALERIJA (klikni sliku za uvećanje/galeriju)


DETALJI O STANU


Uknjižen: stan u izgradnji
Površina: 54,54 m2
Broj soba: 3
Na spratu: Pk
Orijentacija: dvorišno
Grejanje po utrošku: da
Ulazna vrata: sigurnosna
Odvojena kuhinja: ne
Ventilacije kuhinje: da
Broj kupatila: 1
Ventilacija kupatila: da
Broj toaleta: 0
Broj terasa: 1
Ostava: nema
Sobna vrata: uvozna italijanska
Broj etaža: 1
Kosine: nema
Krovni prozori: nema

PRIBLIŽNA LOKACIJA I DEO GRADA


DETALJI O ZGRADI

Gde se zgrada nalazi:
Novi Sad
Naselje ili deo grada:
centar
Adresa:
Šafarikova 27
Broj parcele:
9968/1
Prijava radova:
ROP-NSD-36620-LOC-1/2018
Građ. dozvola:
ROP-NSD-14322-CPIH-2/2019
Upotrebna dozvola:
objekat u izgradnji
Broj spratova:
(Po+P+1+Pk)
Zgrada sa liftom:
da
Dostupan parking:
da
Vrsta grejanja:
gradska toplana
Klimatizacija zgrade:
da
Keramika u zgradi:
italijanska keramika
Podovi u sobama:
parket
Visina plafona:
2,95 m
Spoljnja stolarija:
aluminijumska
Udaljenost od vrtića:
500 m
Udaljenost od osnovne škole:
500 m
Udaljenost od univerziteta:
1200 m
Udaljenost od gradskog prevoza:
5 m
Udaljenost od centra:
0 m
Udaljenost od parka:
450 m
Tržni centar/veća trgovina:
200 m
Udaljen od SNP:
100 m
Udaljen od katedrale:
200 m
Udaljen od Uspenske crkve:
30 m

© LineaInvest.Rs - proizvodnja 2019. - BusinessClub.Rs