PRODAT - stan 13 Šafarikova 27 ulaz A - treći sprat

PRODAT - 3D PRIKAZ

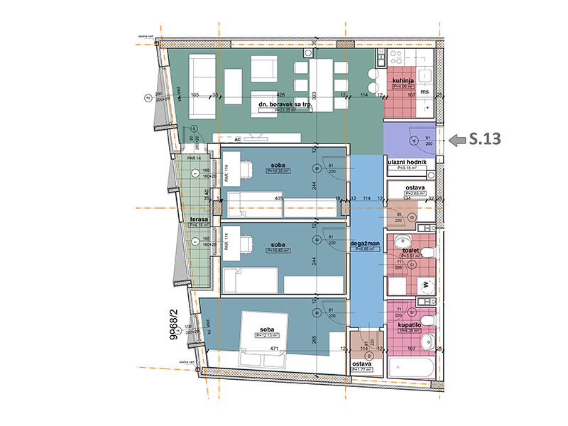
Na trećem spratu stambene zgrade u Novom Sadu, u centru, u ulici Šafarikovoj 27, u ulazu A, prodajemo lep, veliki stan, površine preko 85 m2. Ovo je ulično orijentisan stan i to stan sa terasom, velikom dnevnom sobom i čak tri spavaće. Ulazna vrata su aluminijumska, a unutrašnja stolarija uvozna. Podovi su urađeni u parketu i kvalitetnoj italijanskoj keramici. Stan ima sistem grejanja po utrošku. Kuhinja u ovom stanu je spojena sa dnevnom sobom. Ovaj stan na atraktivnoj lokaciji u centru grada možete kupiti i kao stan na kredit, ali za više informacija, kontaktirajte nas. Ovaj stan ima ostavu u okviru svoje kvadrature, ali kao i ostali stanovi u zgradi ima svoju pripadajuću podrumsku prostoriju, što u centru Novog Sada danas mnogo znači za život. Ovo je najveći stan u zgradi koji je u jednom nivou, dakle veliki stan koji nije dupleks.

Virtuelno se prošetajte stanom kroz 360 view. 


GALERIJA (klikni sliku za uvećanje/galeriju)


DETALJI O STANU


Uknjižen: u izgradnji
Površina: 86,57 m2
Broj soba: 4
Na spratu: 3
Orijentacija: ulični
Grejanje po utrošku: da
Ulazna vrata: sigurnosna
Odvojena kuhinja: ne
Ventilacije kuhinje: da
Broj kupatila: 1
Ventilacija kupatila: da
Broj toaleta: 1
Broj terasa: 1
Ostava: ima
Sobna vrata: uvozna italijanska
Broj etaža: 1
Kosine: nema
Krovni prozori: nema

PRIBLIŽNA LOKACIJA I DEO GRADA


DETALJI O ZGRADI

Gde se zgrada nalazi:
Novi Sad
Naselje ili deo grada:
centar
Adresa:
Šafarikova 27
Broj parcele:
9968/1
Prijava radova:
ROP-NSD-36620-LOC-1/2018
Građ. dozvola:
ROP-NSD-14322-CPIH-2/2019
Upotrebna dozvola:
objekat u izgradnji
Broj spratova:
Po+P+3+Pk
Zgrada sa liftom:
da
Dostupan parking:
da
Vrsta grejanja:
gradska toplana
Klimatizacija zgrade:
da
Keramika u zgradi:
italijanska keramika
Podovi u sobama:
parket
Visina plafona:
2,90 m
Spoljnja stolarija:
aluminijumska
Udaljenost od vrtića:
500 m
Udaljenost od osnovne škole:
500 m
Udaljenost od univerziteta:
1200 m
Udaljenost od gradskog prevoza:
5 m
Udaljenost od centra:
0 m
Udaljenost od parka:
450 m
Tržni centar/veća trgovina:
200 m
Udaljen od SNP:
100 m
Udaljen od katedrale:
200 m
Udaljen od Uspenske crkve:
30 m

© LineaInvest.Rs - proizvodnja 2019. - BusinessClub.Rs